Linero Idrottsförening logo
Linero Idrottsförening
Fotboll

Nybyggnad vid konstgräsplanen på gång
2021-09-24 09:17

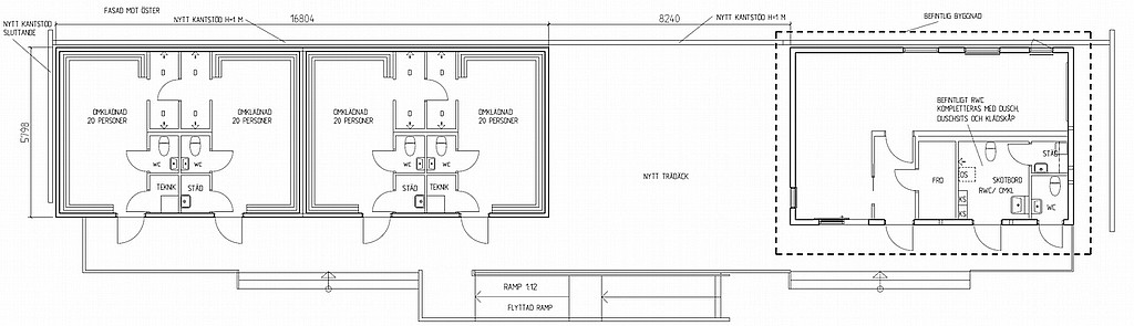
I nästa vecka kommer arbetet med att bygga fyra nya omklädningsrum att påbörjas. Omklädningsrummen kommer att byggas mellan läktaren och och den befintliga servicebyggnaden (klubbstugan) intill konstgräsplanen och det innebär att vi under hösten och vintern kommer att ha en byggarbetsplats innanför staketet på konstgräsplanen. Själva planen kommer dock inte att påverkas, dvs matcher och träningar kan bedrivas om vanligt.

 

Jag ber alla ledare, spelare och föräldrar att respktera byggarbetsplatsen och att bedriva träning och matcher så att vi inte riskerar att någon skadas, tex skall bollar som eventuellt hamnar innanför staketet till byggarbetsplatsen INTE hämtas - dessa får vi tillbaka nästkommande arbetsdag.

 

Det kommer att bli lite rörigt ett tag men "efter regn kommer sol" 

 

Rutger Pålsson

Ordförande


Nyhetsarkiv
Cyrus Momeni 20262026-01-18 21:30
Gustav Hillstedt 20262025-12-23 21:27
Adam Olofsson 20262025-12-21 20:30
Hampus Isberg 20262025-12-21 15:45
Hampus Ferhm 20262025-12-18 14:17
Carl Puumalainen 20262025-12-16 21:34
Linné Björk 20262025-12-16 21:30
Gatekeeper Tobias 20262025-12-16 21:28
Oliver Applewhaite2025-12-16 21:23
Adonay 20262025-12-16 21:19
Matthew Ambaye 20262025-12-12 08:52
Fabian Jansson 20262025-12-10 16:58
Dylan Kosik 20262025-12-09 09:13
Mikias Yonas 20262025-12-07 18:27
Linero IF - Nosaby2025-05-22 09:38
Hoodien släpps imorgon2024-12-06 21:29
Träningsavgifter 20252024-12-01 21:44
2024-11-19 12:50
SERIESEGER 2024 - Div 32024-10-07 20:26
Seriesegrare 2024!2024-10-06 15:59
Intervju med Karlito! 2024-09-21 11:44
2024-09-02 09:13
2024-05-23 23:08
Linero IF - Klagshamn2024-04-11 15:29
Klara för division 32023-09-24 15:13
LIF-dagen 20232023-09-03 22:17
Glad midsommar2023-06-23 09:53
Tillbakablick2023-03-02 20:34
Är karriären över?2023-01-03 15:29
God Jul & Gott Nytt År2022-12-23 07:08
Glad sommar2022-06-23 08:02
Linero IF vattenflaska2022-02-19 18:39
God Jul & Gott Nytt År2021-12-23 13:39
Gällande covid-19 2021-08-30 16:36
Stort Grattis Anna2021-05-04 19:02
Linero IF:s nya kläder2021-02-23 14:29
God Jul & Gott Nytt År2020-12-23 13:20
Linero IF seriesegrare2020-10-03 16:45
Linero IFs styrelse 20202020-03-31 23:19
Coronaviruset2020-03-13 17:23
Jubileumsboken2020-02-25 10:10
God Jul & Gott Nytt År2019-12-23 16:04
Lundabollen 20202019-11-26 16:58
LIF-dagen 7 september2019-08-25 20:12
Linero IF i Ghana2019-06-26 11:16
Trevlig sommar2019-06-26 09:24
God Jul & Gott Nytt År2018-12-23 12:17
500 medlemmar!2018-12-05 17:00
Ny medlem i 100-klubben2018-03-29 20:10
Ny styrelse vald2018-03-15 22:38
Linero IF:s årsfest2017-10-30 17:21
Stora Vikingacupen 20172017-10-11 00:50
GLAD SOMMAR2017-06-22 09:10
1 poäng i premiären2017-04-09 18:40
Äntligen SERIEPREMIÄR2017-04-07 13:11
Linero IFs nya styrelse2017-04-06 23:03
God Jul & Gott Nytt År2016-12-23 10:23
Årsfest 20162016-10-11 16:20
Ny ledarstab i herrlaget2016-07-26 21:43
Ny medlem i 100-klubben2016-05-31 14:01
Hitta hjärtstartare
Vi sponsrar Linero IF
Råd & vård av idrottsskador
Felanmälan & Journummer